Wir erweitern für Sie
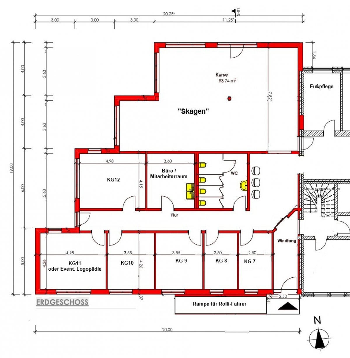
Der Anbau ist gestartet
Der Erweiterungsbau ist in vollem Gange.
Wir hoffen, dass wir den Anbau möglichst schnell fetigstellen können und werden an dieser Stelle über den Fortschritt berichten.
Wir erweitern für Sie
Der Erweiterungsbau ist in vollem Gange.
Wir hoffen, dass wir den Anbau möglichst schnell fetigstellen können und werden an dieser Stelle über den Fortschritt berichten.